首页
首页
关于我们
关于我们
公司简介
企业文化
资质荣誉
产品中心
产品中心
衬布
家纺
面料
实验室检测仪器
其他
新闻中心
新闻中心
公司新闻
公司活动
营销网络
营销网络
营销网络
人才招聘
人才招聘
国内市场
国外市场
联系我们
联系我们
联系我们
EN
CN
公司新闻
公司活动
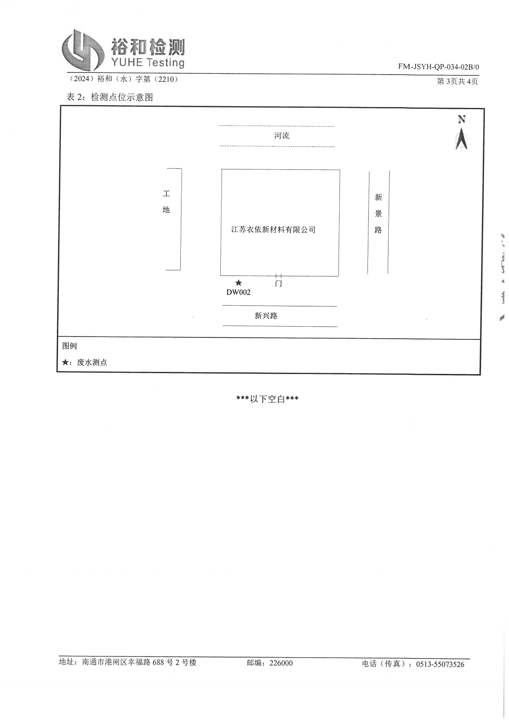
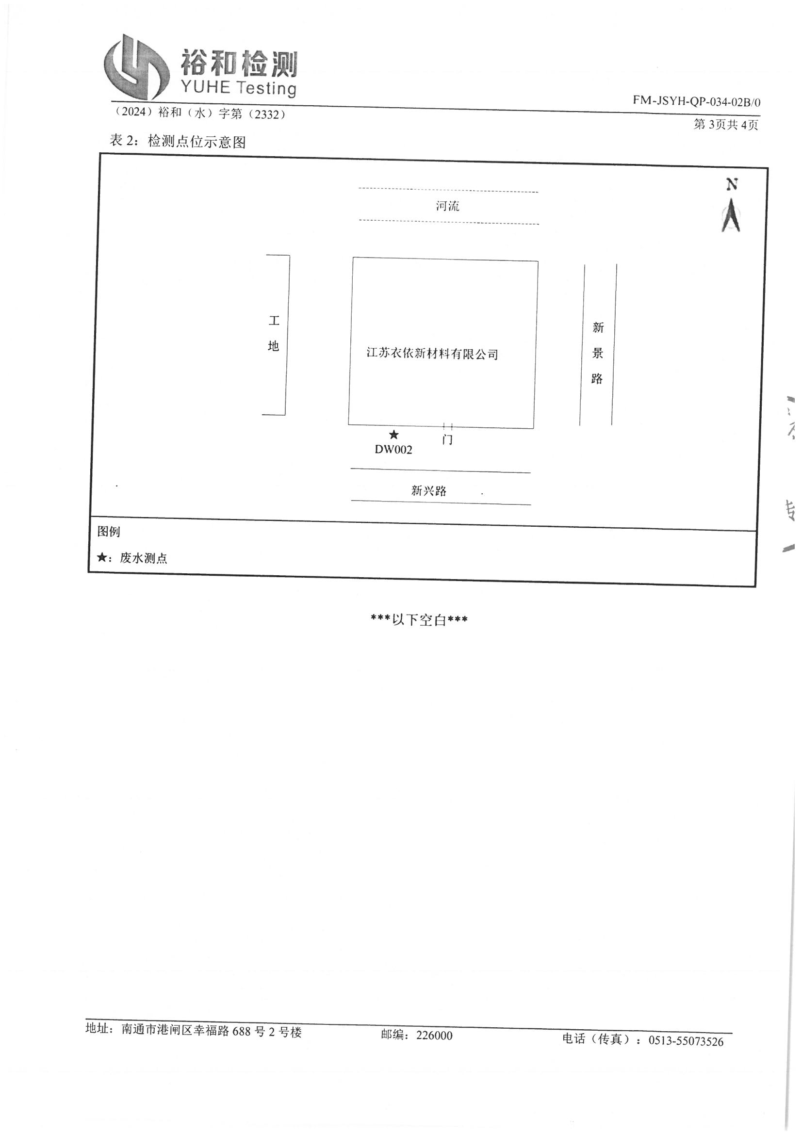
环保检测报告公示
2024-12-16